Bought with TruHome Realty
$245,000
$260,000
5.8%For more information regarding the value of a property, please contact us for a free consultation.
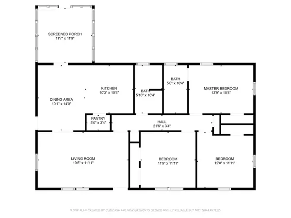
3 Beds
2 Baths
1,344 SqFt
SOLD DATE : 10/21/2025
Key Details
Sold Price $245,000
Property Type Single Family Home
Sub Type Single Family Detached
Listing Status Sold
Purchase Type For Sale
Square Footage 1,344 sqft
Price per Sqft $182
Subdivision Hampton Drive
MLS Listing ID 25024961
Sold Date 10/21/25
Bedrooms 3
Full Baths 2
HOA Y/N No
Year Built 1965
Lot Size 0.300 Acres
Acres 0.3
Property Sub-Type Single Family Detached
Property Description
Welcome to your new home! This is a beautiful 3 bedroom 2 bath home situated on an 0.3 acre lot. This home has also been renovated with many exciting features. You do not want to miss out on this great home with a great price tag! *List of improvements* Renovated bathrooms Completed renovated kitchen New cabinets New floors throughout Interior exterior paint Upgraded light fixtures New tankless water heater
Location
State SC
County Colleton
Area 82 - Cln - Colleton County
Region None
City Region None
Rooms
Primary Bedroom Level Lower
Master Bedroom Lower Ceiling Fan(s), Walk-In Closet(s)
Interior
Interior Features Ceiling - Blown, Eat-in Kitchen, Pantry
Heating Central
Cooling Central Air
Flooring Luxury Vinyl
Laundry Laundry Room
Exterior
Parking Features 1 Car Carport
Roof Type Metal
Porch Deck
Total Parking Spaces 1
Building
Lot Description 0 - .5 Acre
Story 1
Foundation Crawl Space
Sewer Septic Tank
Water Public
Architectural Style Ranch
Level or Stories One
Structure Type Brick
New Construction No
Schools
Elementary Schools Northside Elementary
Middle Schools Colleton
High Schools Colleton
Others
Acceptable Financing Any
Listing Terms Any
Financing Any
Read Less Info
Want to know what your home might be worth? Contact us for a FREE valuation!

Our team is ready to help you sell your home for the highest possible price ASAP
GET MORE INFORMATION







